Evgeniy Sodylev
ARCHITECTS
About us
Classic
Modern
Wood
Contact
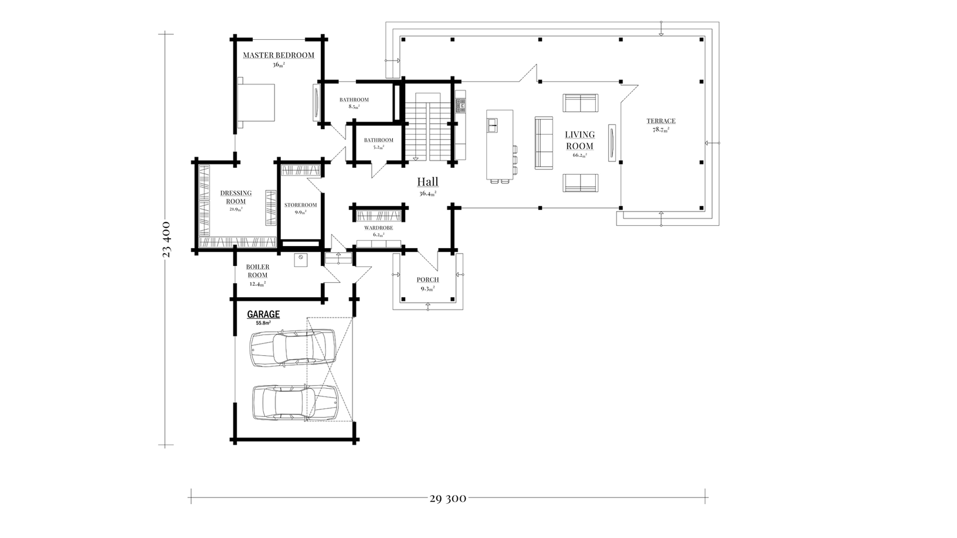
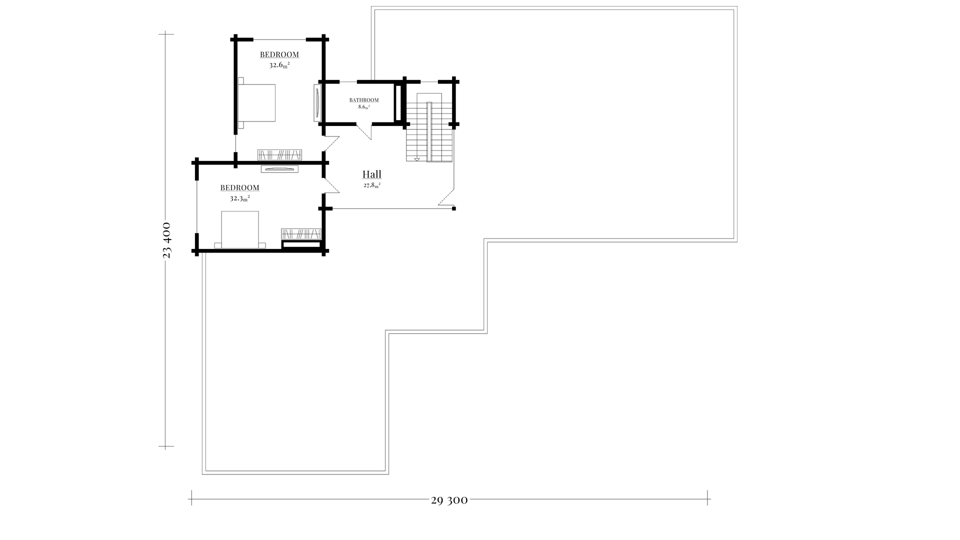
- Techno No. 2 for SKD-DOM -
‹ back
Previous project ‹
› Next project