Evgeniy Sodylev
ARCHITECTS
About us
Classic
Modern
Wood
Contact
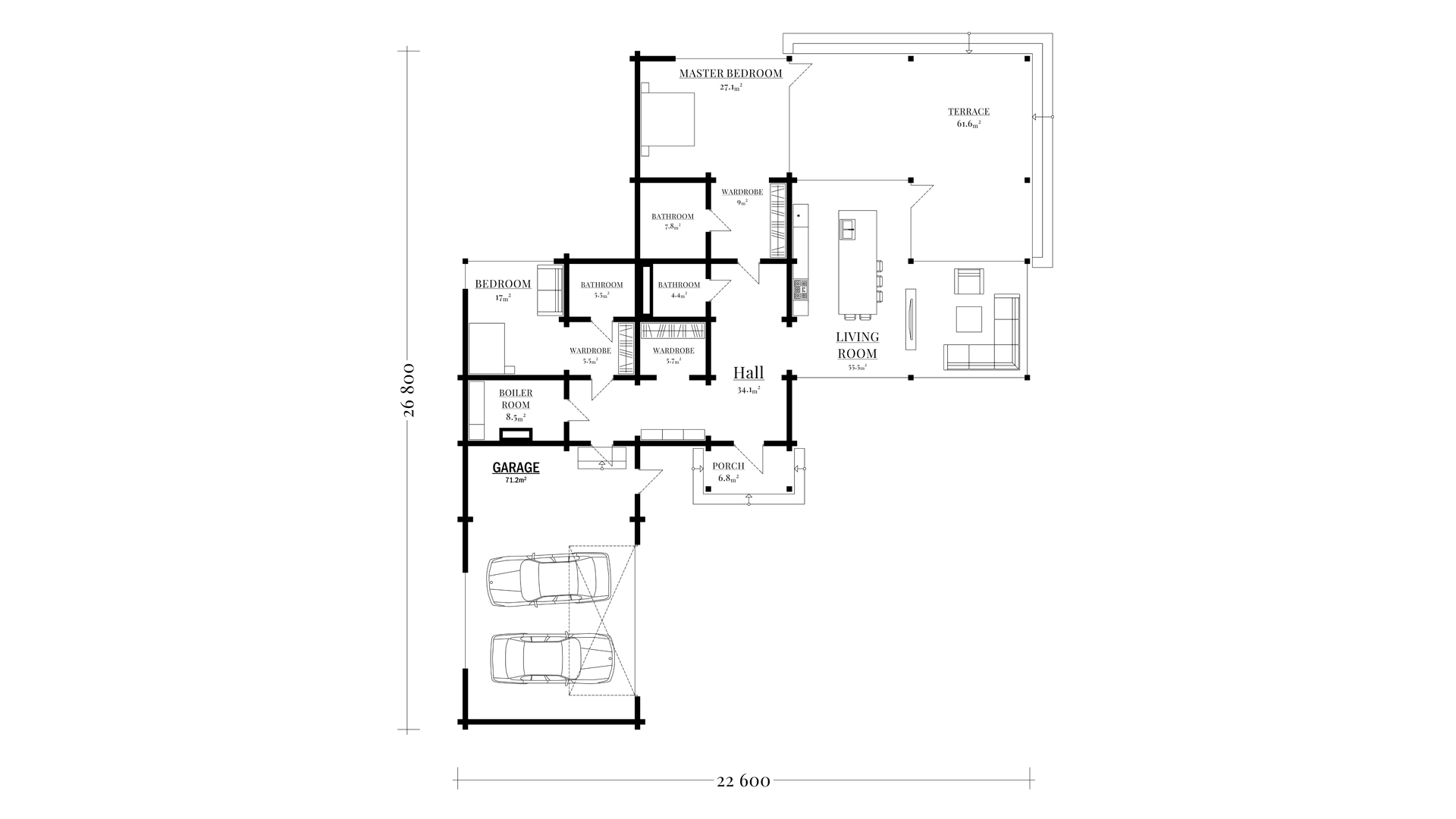
- Techno No. 1 for SKD-DOM -
‹ back
Previous project ‹
› Next project