Evgeniy Sodylev
ARCHITECTS
About us
Classic
Modern
Wood
Contact
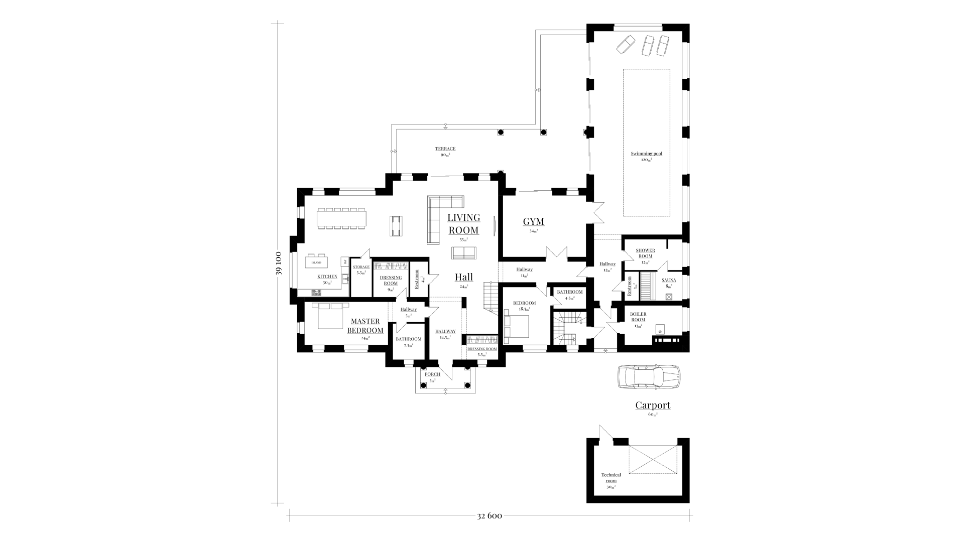
- Village Ekaterinovka No. 11 -
‹ back
Previous project ‹
› Next project