Evgeniy Sodylev
ARCHITECTS
About us
Classic
Modern
Wood
Contact
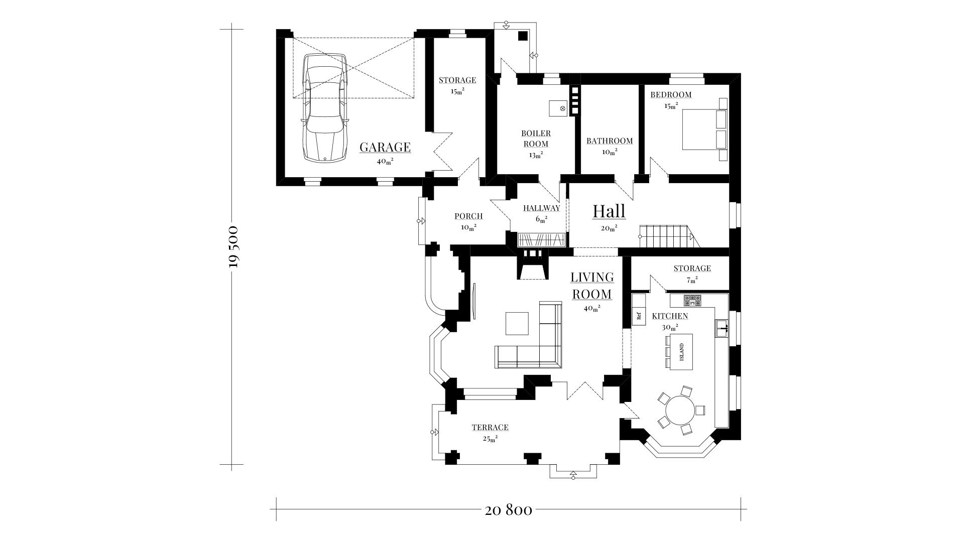
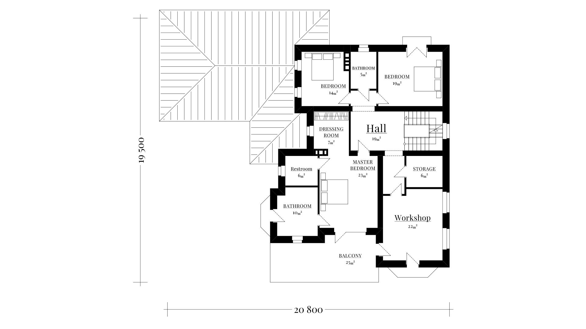
- Luzhki project -
‹ back
Previous project ‹
› Next project