Evgeniy Sodylev
ARCHITECTS
About us
Classic
Modern
Wood
Contact
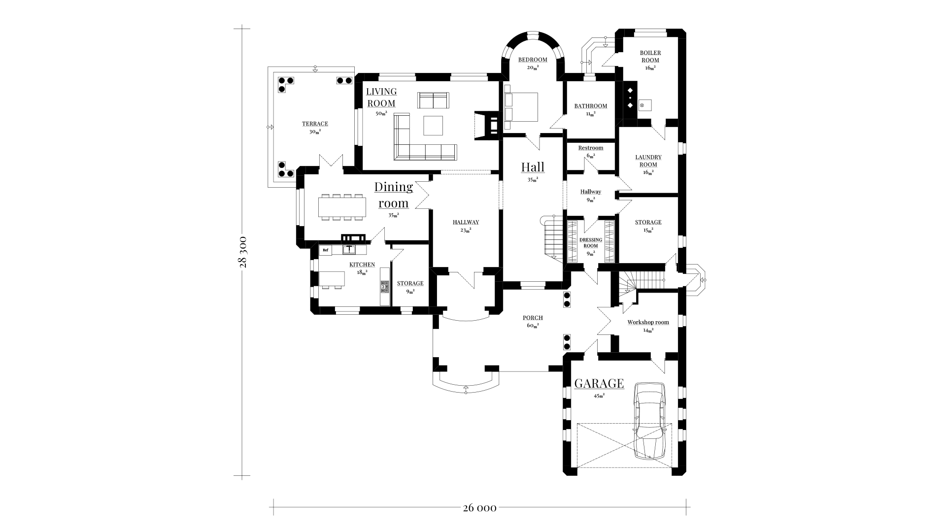
- Chateau project -
‹ back
Previous project ‹
› Next project